House Ker-Fox

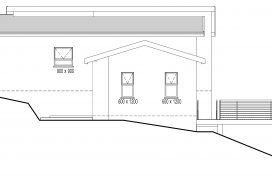
This sub-divided site in Beacon Bay has fantastic valley views and is very privet.

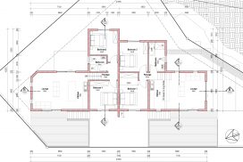
We designed 2 x 2 bedroom rental units as an investment for my client.

Each unit has 2 bedrooms, 1 bathroom, open plan lounge and kitchen with a covered patio and deck. There is also a garage under the dwelling. 

This was about the 4th design for the site.

Project Date: Oct 2017

Client: Warwick Ker-Fox

Location: Beacon Bay

Category: Residential